• 重磅!武汉经开的第一条环线来了!
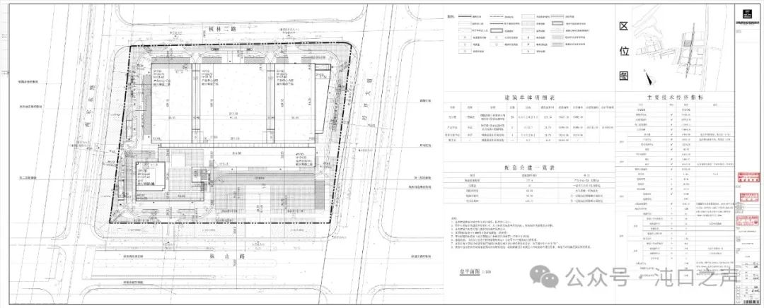
    近期,相关网站发布了沌口环线车城南路项目的招标计划。 根据招标信息显示,沌口环线车城南路项目起点接硃山湖大道,下穿兴华路、汤湖公园、汤湖、创业四路后终点接车城东路及沌口路。该工程建成后,沌口车城东路、车

    交通   |  2024-12-23 19:33

  • 全面升级!汉阳钟家村十字路口“大变身”
    近日汉阳区重要交通节点钟家村十字路口已完成全面交通改造通过诸多精细化调整和设施更新有效解决机动车与非机动车争道矛盾进一步提高路口通行效率缓解交通拥堵为市民提供了更安全、便捷高效的出行体验

    交通   |  2024-12-23 19:29

  • 官宣!2025刀郎武汉演唱会定档沌口“武汉体育中心”
    12月22日,备受大家期待的《山歌响起的地方·刀郎巡回演唱会》武汉站官宣,2025年3月29日—30日在武汉沌口体育中心开场。

    娱乐   |  2024-12-23 19:24

  • 青山区“青山公园”的音乐喷泉什么时候开放?
    网友咨询 中山公园有音乐喷泉,请问武汉市青山区青山公园以前的音乐喷泉什么时候开?官方回复:收到您反映的问题后,我局第一时间要求青山公园管理处核实相关情况并进行处理。青山公园绿荫广场喷泉于2000年建成

    社会   |  2024-10-15 15:17

  • 重大利好:长江新区五通片区即将大开发!汉施公路将外迁!
    汉施公路要外迁,这事一传开,估计不少武汉市民的第一反应都是——“终于等到你,还好没放弃!”这条公路在武汉的交通版图上可是出了名的“黑点”,车多路窄,尤其是货车那叫一个多,日夜川流不息,夹带着噪音和污染

    社会   |  2024-10-15 15:06

  • 今晨,“武汉天河机场”第三跑道实地验证试飞成功
    “塔台,南方5699,试飞完成,请求落地!” “南方5699,塔台收到,可以落地。”10月15日清晨7时00分,伴随着塔台管制员清晰而有力的指令,一架波音B737-800飞机在完成一系列验证科目后,稳稳降落在武汉天河国际机场

    交通   |  2024-10-15 15:02

  • 中国民企500强!湖北14家企业上榜
    全国工商联日前发布“2024中国民营企业500强”榜湖北省14家企业上榜 另外湖北12家企业入围“2024中国民营企业制造业500强”湖北4家企业入围“2024中国民营企业服务业100强”

    社会   |  2024-10-15 15:00

  • 最新消息来了!高新三路高架什么时候能通车
    近日,有网友咨询高新三路的进展,官方已回复。网友留言:请问下高新三路高架路什么时候能通车。官方回复:关于您反映高新三路建设进度的相关问题。我区交投公司工作人员立刻展开了调查,经查,根据东湖高新区管委会

    交通   |  2024-10-15 14:57

  • 向东延伸5.4km,“和平大道”将延长至四环线
    10月12日获悉,武汉和平大道(工人村路—四环线)工程近日迎来进展:主线斜拉桥桩基正式开钻。据悉,该项目是衔接三环内主城与四环外新城的重要干线通道,建成后将成为连接武鄂黄黄国际综合交通枢纽的重要一环。上述项

    交通   |  2024-10-15 14:36

  • 今起三天,“新城快线”部分列车临时停运!
    湖北铁路集团轨道运营有限公司刚刚发布公告明(15日)起三天“新城快线”部分列车临时停运

    交通   |  2024-10-15 14:32

  • 今日开通!汉南机场武汉直达十堰,今天飞机票99元
    好消息武汉汉南机场至十堰、荆州航线今天正式开通!今日,一条连接湖北省两大城市的空中通道正式开通,低空飞机从武汉直飞十堰,单人票价低于299元。这一新航线的开通,不仅为两地居民提供了更加便捷高效的出行选择,

    交通   |  2024-10-15 14:30

  • 今晚武汉体育中心有演唱会,沌口这里交通管制!回家注意哦!
    2024沈以诚武汉演唱会将于2024年10月12日(周六)19时30分在武汉体育中心体育馆举行,预计当天约7000余名持票观众将到现场观看。武汉交警提示:演唱会当天,武汉体育中心周边道路将根据交通管理需求,采取临时交通管理

    社会   |  2024-10-12 17:23

  • 官方回复!东西湖航城大道跨府河项目何时动工
    业主咨询航城大道跨府河项目已经说了几年了,现在去盘龙城区域必须绕行机场高速或府河特大桥或走低速到武汉客厅过盘龙大桥到盘龙城出行不便,黄陂段已经动工想问东西湖段计划何时动工建设官方回复经核实,您反映的盘

    交通   |  2024-10-12 17:20

  • 研究生学制延长已成定局!多所高校学制由3年调整为4年
    研究生学制延长已成定局!网友评论如下:建议高校学制改为:本科5年,硕士6年,博士7年,既能学深学透,掌握真本领,又可缓解就业压力,还可压缩工龄,减少退休金主要是又可以从学子父母兜里多弄点钱,还能晚就业,这

    教育   |  2024-10-12 17:15

  • 武汉秋意浓,东湖桂花香
    金秋10月,武汉秋色渐浓,长江日报记者踏访东湖风景区,湖光山色呈现出了秋天的色彩,四大景区、东湖绿道上的桂花都已盛开了!

    旅游   |  2024-10-12 17:13

三日内热门评论文章
关键词